schließen

 

Ein Beitrag von www.unbekannter-bergbau.de

Erstellt September 2010, letzte Aktualisierung Juli 2015.

 


 

Der St. Johannes Stolln am Biesener Vogelsang  

Der Bergbauverein „Historischer Bergbau Seelitz e.V.“ begann unlängst mit der Freilegung des „St. Johannes Stolln“ am so genannten „Vogelsang“, einem mittelalterlichen Fangplatz für Singvögel. Die erste urkundliche Erwähnung war schon 1488, da wurden 3 Bergwerke in dieser Region belehnt. Wobei man von „Alten Stolln“ sprach und die Vermutung nahe liegt, daß der Bergbau hier bereits viel älter sein könnte. 


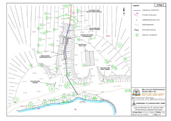
Die Lage des Stollns innerhalb der 
Bergbauregion um Rochlitz. Diese Karte gibt es 
hier noch mal größer.
 

Die Freilegung des Stollnmundlochs erfolgte gleich als großangelegte Baggeraktion des Bergbauvereins. Dabei wurden etwa 200 Kubikmeter Erdreich bewegt und somit dem Verein die aufwendige Handarbeit erspart. Im Frühjahr diesen Jahres nahm das Projekt schon konkrete Züge an. 

 


Vor dem Anrollen der Bagger sah die Lokalität noch recht „verwildert“ aus. Nur Eingeweihte oder Bergbaufreunde erkennen die Lage des Stolln, obwohl hier nicht mal der Wasserlauf ein eindeutiger Hinweis auf vormaligen Bergbau war. Die Baumstämme im Vordergrund verheißen erste Aktivitäten...
 

Während eines Projektes mit  angehenden Geophysik- Technikern der Technischen Berufsschule „Julius Weißbach“ Freiberg nahm man die Ortung des Stollnmundloches in Angriff. Obwohl schon ein Wasseraustritt einen ersten Hinweis auf die Lage des Mundloches gab, wurde unter der Leitung von Bernhard Wagenbreth  diese Stelle mittels Geophysikalischer Methoden untersucht und somit eine solide Basis für den Einsatz eines Baggers geschaffen.
 


.....auch der Erdaushub und der Bagger kündigen wieder mal bergbauliche Aktivitäten an!

Der ehemalige „St. Johannes Stolln“ am Bieserner Vogelsang ist seiner Zeit in der Gegend das bedeutendste Bergwerk gewesen – hat doch Johannes Mathesius von 1504 – 1512 als Jugendlicher persönlich die Bergbücher der Grube geführt, während sein Vater als Eigentümer angeblich sein gesamtes Vermögen dort verlor. Mathesius wirkte bis zu seinem Tod 1565 in St. Joachimsthal als Pfarrer und war ein enger Vertrauter von Georgius Agricola, dessen Lehren er mit seinen Predigten auf volkstümliche Weise verbreitete.
 


Die ganze Sache wird nun sehr spannend, nur Mutterboden, keine Halde und noch lange kein Stolln....
 

Mit Unterbrechungen wurde der Abbau der silberhaltigen Kupfererze auf dem Flurstück, dessen Name ja auf einen mittelalterlichen Vogelfangplatz hindeutet, immer wieder aufgenommen. 1556 soll man hier eine Wasserkunst eingebaut haben, Rechnungen des Rochlitzer Amtes belegen in den Folgejahren den Betrieb. Die umfangreichsten und aussagekräftigsten Akten liegen dem Verein aus dem 18. Jahrhundert vor, hier liefern Grubenregister wertvolle Zahlen bezüglich der Kosten und so genannte Fahrbögen beschreiben den Zustand des Stollns. 
 


Oder doch: da sieh mal einer an, da ist ja doch was. Stollnschlamm und etwas anstehendes Gebirge kündigen eine Bergbauanlage an. Die im Vorfeld zusammengetragenen Fakten sind also doch Realität und keine Sage!
 

Im Jahr 1790 wird uns letztmalig von einer Befahrung berichtet, der Stolln war zu dieser Zeit 172 Lachter vorgetrieben bei 18 Lachter Saigerteufe. In den Fahrbögen wird von einem bis zu 10’’ mächtigen Gang mit Kies, Spiesglas, Fahlerz, Antimonium und Kupferkies berichtet. Die Grube hieß zuletzt „St. Johannes Erbstolln“, die hier geförderten Erze wurden auf der Muldeninsel bei Rochlitz in einer Schmelzhütte weiterverarbeitet.
 


Das ganze Geschehen aus der Ferne verdeutlicht mal die tragweite des gesamten Projektes. Mittels Handschachtung wäre dieses Vorhaben selbst für erfahrene und mitgliederstarke Vereine ein gewaltiges Projekt. Der Einsatz eines „Dieselspaten“ ist schon berechtigt und man muss nicht so lange auf ein Ergebnis warten! 
 

Insgesamt ist der Betrieb des Bergwerks für die folgenden Jahre belegt oder überliefert: 1516, 1556, 1565, 1578, 1668, 1710, 1723 bis 1726 und 1787 bis 1790. In einer Handschrift von 1860 wird berichtet, dass die Halden, Bingen und der Schacht noch zu sehen seien, ebenso Reste der Grundmauern der alten Wäsche. Um 1900 sollen die Stolln zugeschüttet und die Halden eingeebnet worden sein. Dabei fand man allerlei Geleucht und Werkzeug. Der jetzt noch sichtbare Haldenrest mit teils recht attraktiven Schwerspatstücken ist seitdem allgemein bekannt.
 


Das Gelände vorm Stollnmundloch ist gleich für zukünftige Belange abgezogen worden und eine schöne Halde gibt es auch schon.
 

Für den Verein ist die Aufwältigung des Stollnmundloches schon ein herausragendes Ereignis, und so hat man auch anspruchsvolle Pläne: Neben der  denkmalgerechten Sanierung des Mundlochs, dem Bau einer Kaue und die weitere Aufwältigung des Stolln, werden den Vereinsmitgliedern einiges abverlangen, aber auch ein schönes Projekt für die Zukunft sein! In den nächsten Wochen will der Vorstand des Bergbauvereins dazu ein Projekt erstellen. Ebenso muss überprüft werden wie das gesamte vorhaben in der Zukunft finanziert wird, die Vereinsbeiträge reichen da bei weitem nicht. Vielleicht besteht auch die Möglichkeit der Förderung, wie über das ILE – Projekt, man wird sehen was die Zukunft bringt! 
  


Eine der wohl wichtigsten Arbeiten bei einer Stollnaufwältigung ist die Anlage einer Wassersaige. Hier unsichtbar im Waldboden verlegtes KG- Rohr, es erfüllt diesen Zweck auch, hat aber einige Nachteile wenn das Gefälle nicht stimmt!
 

Natürlich wird die Eigenleistung, so wie in den anderen Bergbauvereinen auch üblich, im Vordergrund stehen. Dafür sucht der Verein noch Unterstützung, einmal in Form weiterer aktiver Mitglieder, ebenso durch Baumaterial und Fuhrleistungen. Also wer die Möglichkeit sieht sich bei diesem hochinteressanten Projekt mit einzubringen, kann sich ja über die bekannten Kontakte melden.

www.bergbau-seelitz.de 

 


Gut zu erkennen ist der tiefe Einschnitt im Gelände um die Sohle des Stolln auch zu finden. Um die Sohle des Stolln zu erreichen muss nochmals das Gelände vorm Mundloch nachgeteuft werden.
 

Auch die Presse berichtete ausführlich über das Vorhaben.
 


    

Dieser Beitrag wird fortgesetzt! Sobald der Bergbauverein wieder fleißig war und es neue Infos und Bilder gibt. 


Der Eingriff ins Gelände ist erheblich und das Ergebnis erhebend! Es ist immer wieder schön wenn alte Gruben freigelegt und einer neuen Nutzung zugeführt, als wie mit Beton verfüllt und für immer vergessen. Schön in einem Bundesland zu leben, wo für Vereine solche Möglichkeiten bestehen!

Die Redaktion von „unbekannter-bergbau“ bleibt  für Sie an der Sache dran, zum Beispiel:  


Das freigelegte Stollnmundloch „St. Johannes“. Wenn das die Altvorderen wüssten...
 

Aller Anfang ist schwer oder wir haben viele Ideen !

Schon seit geraumer Zeit befasst sich der Seelitzer Bergbauverein mit der Aufwältigung des „Johannes Stolln“. Doch das ist nicht das einzige Projekt. Was ist die Arbeit am Stolln ohne eine Kaue als Werkzeugniederlage oder Vereinsraum? Alles muss sonst für den Arbeitseinsatz hingekarrt und wieder fortgeschafft werden! Auch hat man keine Möglichkeit sich umzuziehen oder seine Habseligkeiten abzulegen! Deshalb stellen Stolln und Kaue ein Projekt dar das natürlich nicht aus eigener Kraft zu stemmen geht. Auch für die zukünftigen Besucher des Areales gäbe es eine Möglichkeit zum Verweilen. 

Die Möglichkeit für die Beantragung von Fördermittel wurden schon lange wahrgenommen und sind im Laufen. Die arbeitsseitige Eigenleistung kann auch erbracht werden. Nur der finanzielle Teil stellt noch ein Problem dar, doch auch hier arbeiten die Vereinsmitglieder an einer Lösung. Das Projekt für Kaue und Stolln erstellte Andreas Benthin mit seinem Ingenieurbüro aus Halsbrücke bei Freiberg schon am Anfang des Jahres 2010 und schuf damit eine solide Grundlage für das gesamte Vorhaben. 

Doch klappern gehört nun mal zum Handwerk, besonders bei den kleinen Bergbauvereinen wie Seelitz. Neben den Veranstaltungen die dieses Jahr noch über die Bühne gehen und etwas Geld für das große Projekt in die „Bergcasse“ spülen, ist der Verein auf diverse Spenden angewiesen. Wer also den Verein beim Projekt Stollnmundloch und Kaue unterstützen möchte, kann sich auf der HP vom Seelitzer Bergbauverein www.bergbau-seelitz.de die nötigen Infos holen.
 

 
So soll die Grundkonstruktion der Kaue auf der Halde vom Mundloch aussehen. Ein typischer Fachwerk-Ständerbau. 
 


 

Um überhaupt an die Fördermittel zu kommen, mußte vom Bergbauverein ein Projekt mit „Hand und Fuß“ geschaffen werden. Hier gab es entsprechende Unterstützung aus Halsbrücke von Andreas Benthin und seinem geologischem Ingenieurbüro. Im Rahmen des Betriebsplanes ist auch ein Projekt zur Gestaltung des Geländes erstellt worden. 
 

Inwieweit alles umgesetzt werden kann, wird sich in der Zukunft zeigen. Behörden wie das Oberbergamt und das Archäologische Landesamt stehen dem Vorhaben nunmehr aufgeschlossen gegenüber.

So jedenfalls könnte die fertige Kaue dann einmal aussehen. Paßt prima in die Landschaft und ist auch für den Verein nutzbar. Der offene Teil steht für die Besucher zum Verweilen, der abgeschlossene Raum für den Verein, natürlich mit nutzbarem Boden zur Einlagerung von Material oder als „Schwarzkaue“ für die dreckigen Arbeitssachen.

Zu entsprechender Zeit werden wir auch über die Umsetzung des Projektes hier berichten ! 


 

Was in der Umgebung noch Interessantes zu finden ist, das lesen Sie 
bei uns  hier
  

 

Glück Auf  !
Und: Man sieht sich !