schließen

 

Ein Beitrag von www.unbekannter-bergbau.de

Erstellt September 2014, letzte Aktualisierung Juli 2015.

  

 1.Etappe: Wiederaufbau der Schmiede 2008
 2.Etappe: Wiederaufbau des Amtshauses ab 2011
 Versuch einer Bauwerksbeschreibung
 
Fundsachen...

 

Ein nur scheinbar unscheinbares Baudenkmal:
Das "Bergamtshaus" in Wolkenburg

 

Wir fangen einmal hinten an:

Nachdem die letzten Bewohner Anfang der 1990er Jahre ausgezogen waren, stand der kleine Hof im Tal des Herrnsdorfer Baches südwestlich von Wolkenburg, heute das Haus Zur Papierfabrik 10, leer. Wie das immer so ist, wenn sich kein Nutzer mehr darum kümmert, drohte es zu verfallen. Die Scheune wurde bald schon abgerissen und auch der Rest des kleinen Gebäudeensembles war nicht gerade in bestem Zustand.

Im Dezember 1997 begann die Nutzung des früheren “Bergamtshauses“ in Herrnsdorf als "Huthaus" des Vereins Altbergbau/Geologie Westsachsen e.V. Im April 2000 erfolgte die provisorische Übernahme des ehemaligen Bergamtshauses “ Zur Papierfabrik 10“ durch den Verein.

Inzwischen ist das Gebäude im Besitz der Stadt Limbach-Oberfrohna, deren Ortsteil nach mehreren Kreis- und Gebietsreformen Wolkenburg geworden ist. Seit 2008 wird es schrittweise rekonstruiert.

Ab 2012 wurden dafür Fördermittel in Höhe von 44.000 Euro von der Stadt und weitere 116.000 Euro aus dem EU-Programm für ländliche Entwicklung (EPLR) bereitgestellt. Die Arbeiten am Haus erfolgten unter fachlicher Leitung eines Architekten und soweit erforderlich durch Fachfirmen (u. a. Elektroarbeiten, Zimmermannsarbeiten, Dacheindeckung). Allein von Frühjahr 2012 bis September 2013 steckten aber auch fast 1.000 ehrenamtliche Arbeitstunden der Vereinsmitglieder im Haus (u. a. Abriss- und Abputzarbeiten, Ausschachtarbeiten usw.).

Im Herbst 2013 wurde das Amtshaus im Rohbau fertig. Weitere Arbeiten hinsichtlich Innenausbau, Wiedereinrichtung der Vereinsräume und der ständigen Ausstellung folgten noch nach.

 


Ausschnitt aus den Stollnkarten, welche im 19. Jahrhundert im Oberbergamt zu Freiberg zu Übersichtszwecken geführt wurden. Zu dieser Zeit ist hier nur (rot) der Gottlob Stolln eingetragen; dies aber vermutlich auf der falschen Seite des Tales. Die kleine Gebäudegruppe des Amtshauses steht noch (rechts des Weges nach Westen hinter der Querung des Herrnsdorfer Bachs). Bildquelle: Sächsisches Staatsarchiv, Bergarchiv Freiberg, Bestand 40044-5 (Generalrisse, Stollnkarten), Nr. I72, Ausschnitt, Norden ist rechts oben.

Link zum Digitalisat:  archiv.sachsen.de/archiv
Die Digitalisate des Sächsischen Staatsarchives stehen unter einer
Creative Commons Namensnennung 3.0 Deutschland Lizenz.

    


So sah das erhaltene Ensemble im Jahr 2001 aus: Ostgiebel des Amtshauses und rechts die Schmiede.
  

  

Was wir bisher herausgefunden haben:

Das Gebäude weckte schon länger unser Interesse, wird doch ein "Amtshaus" im Wolkenburger Revier mehrfach in alten Akten erwähnt.

Die früheste Erwähnung findet sich in den alten Wolkenburger Gerichtsbüchern. Der Wolkenburger Richter Andreas Claß (auch Kloss geschrieben) erwarb das Amtshaus 1613 vom Bergamt Marienberg, nachdem der Bergbau in diesem Gebiet wieder einmal zum Erliegen gekommen war. Das “Berg-Amts-Haus” wird darin als ein Lehen des Bergamtes Marienberg und zusammen mit einer Schmelzhütte genannt. Der Kaufverschreibung zwischen dem Marienberger Hüttenmeister Christoff Herzog und dem Richter Andreas Claß zu Wolkenburg vom 7. Juli 1613 wegen des Berg- und Zechenhauses zu Wolkenburg ist zu entnehmen, dass sich die Schmelzhütte auf Michael Specks Gütern und das Berg- und Zechenhaus daneben auf Paul Riedels “Reynungen”, befindet. Bestandteil dieses Kaufvertrages ist ein Vorbehalt, der den künftigen Gewerken bei Wiederaufnahme des Bergbaus das Rückkaufsrecht gegen Erstattung des Zu- und Erbegeldes wieder einräumen soll. Deshalb wurde dieser Kaufkontrakt in das Marienberger Bergbuch hinterlegt.

Am 8. Oktober 1613 verkaufte Andreas Claß danach das Amtshaus, ”... so in Herrnszdorffer Fluer vnd zvnegst an der Bach doselbst gelegen”, an Hans Petzl (oder Petzolt) von Kaufungen für 18 neue Schock.

Aus einer unter Bergmeister Hans Mittelbach am 5. Oktober 1625 in das Bergbuch eingetragenen Nachricht zum Kauf der Zechenhäuser zu Wolkenburg ist zu entnehmen, dass der Richter Andreas Kloß im Auftrag seines Lehnsherrn Georg Haubold von Ende von den vormals bauenden Gewerken unter Hans Löser und Georg Heinrich von Ende das auf Michael Specks und Paul Riedels Gütern gelegene Amtshaus für gute 20 ßo (Schock), die alte Schmelzhütte (Hüttenstadt) für 8 ßo und das Schmiedehäuslein für 4 ßo Bargeld, also insgesamt 32 gute Schock, gekauft hat.

1637 kauft Michael Goldhain das Amtshaus für 6 ½ neue Schock von Haubold von Ende, die Kaufurkunde behält sich wieder eine mögliche Wiederbelebung des Bergbaus vor.

Peter Tost kaufte schließlich am 17. Mai 1650 das “Berghäuslein“ und heiratete die Witwe Goldhains.

"In Herrnsdorfer Flur und nah am Bach daselbst gelegen" - dabei konnte es sich also nur um dieses Gebäude handeln. Es stand folglich mit Sicherheit schon vor 1613 und ist damit vermutlich eines der ältesten, noch erhaltenen Häuser in Herrnsdorf.   

    


Kartenausschnitte von Generalstabskarten aus der Zeit 1937 bis 1939, die man heute in amerikanischen Onlinebibliotheken finden kann... Blöderweise liegt Wolkenburg im Zwickel von vier Kartenblättern (5041, 5042, 5141 und 5142). Halden und Schächte sind im 20. Jhdt. leider längst verschwunden und auf diesen Karten nicht mehr drauf.
  


Aber wenn man auf dem 1:25.000´er Kartenblatt ganz genau hinschaut, sieht man nördlich hinter der Brücke über dem Herrnsdorfer Bach (ganz oben und ganz rechts auf dem Blatt 5141 - Glauchau) einen ganz kleinen Vierseitenhof... Zu dieser Zeit (um 1939) das einstige Bergamtshaus.
  


Kurz vor Beginn der Sanierung im Jahr 2011: Die südliche Längsfront (zur Straße)...
 


...und die nördliche Hofseite.
  


Im Eingangsbereich fällt zuerst das kleine, hoch gesetzte Außenfenster hinter der Treppe ins Auge. Es ist dem zur Straße hin leicht ansteigenden Gelände geschuldet, gibt kaum Licht und wirkt eher "schießscharten-ähnlich"... 
   


Der relativ geräumige Flur ist mit schwarzen und weißen Steinzeugfliesen diagonal ausgelegt.
  


Hier im Erdgeschoß befand sich unser kleiner Ausstellungsraum.
 


Über die Jahre hatte sich hier so Einiges angesammelt - aber das Ordnungsprinzip war irgendwann einmal abhanden gekommen...
  

 

 

 

Sanierung der Schmiede ab 2008

Viele Fotos haben wir dabei nicht gemacht... Aber auch an dieser Stelle sei allen Sponsoren, die uns dabei mitgeholfen haben, noch einmal herzlich gedankt !

 


Beginn der Sanierung mit Hilfe von Sponsoren durch die AG im Jahr 2008: Die Schmiede.
  


Lattung und Anstrich an der südlichen Giebelseite...
  


... und an der (westlichen) Hofseite.
 


Teilweise unter erschwerten Bedingungen: Wer arbeitet schon gern über Kopf. Also wenigstens im Liegen.
 


Fertig bis auf die Verfugung des Bruchsteinmauerwerks war sie im Dezember 2008: Schon mal ein "Hingucker" geworden...
 

 

 

 

Ein Haus entsteht neu: Sanierung des Amtshauses ab 2011

Impressionen vom Wiederaufbau des Amtshauses...

    


Vorleistungen: Errichtung von Kleinkläranlage und neuer Sanitäranlagen im Erdgeschoß.
  


Einen Blick auf das Naturstein-Mauerwerk des Westgiebels erlauben seitdem hier kleine "Archäologische Fenster".
   


Eins bei den Herren und eines bei den Damen.
  


Da wir zwischenzeitlich irgendwo hinmüssen, wird zuerst der kleinere Raum an der westlichen Giebelseite von innen hergerichtet.
  


In diesem Kopfband an der Innenwand sind noch die Zapflöcher für die vorherige Ausfachung der Trennwand zu sehen. Die erfolgte - wo sie noch mehr oder weniger original erhalten war - mittels krummer und sonst zu nichts als Feuerholz zu gebrauchender Latten und mit Lehm.
  


Aber nun geht´s wirklich los: Die Regionalpresse berichtet, daß der Wiederaufbau im Gange ist.
(Faksimile Freie Presse, Ausgabe Umland Chemnitz vom 19.07.2012)
  


Haben Sie es im Zeitungsartikel gelesen ? "Der marode Bauzustand stellt eine Herausforderung dar." Das ist eigentlich auch keine Frage, wenn man ein mindestens 400 Jahre altes Haus auseinander nimmt. Und auch wir können davon ein paar Strophen singen: Unsere Eigenleistungen im Winter 2011/2012 umfaßten den Abbruch des alten Putzes, alter Verkleidungen und die Freilegung der Balkenkonstruktion. Außer den morschen Trennwänden und dem Innenputz mußten dabei auch die alten Strohmatten und die Lattung samt Hinterfüllung raus, damit Architekt und Zimmerleute an Dachsparren und Kehlbalken herankommen.
  


Dachgeschoß ist fast leer - bis auf die Dielenbretter.
 


Unsere Vereinsräume reduzierten sich derweil auf einen Frühstückstisch und der wanderte dem Bauablauf folgend quer durchs Gebäude... Hier im Foto im Juni 2012 gerade an der Südseite des Obergeschosses: Der Innenputz ist bereits ab und die erste Ladung Bauschutt rausgeschafft. Der Fußboden ist noch der alte...
  


Etwas später: Auch die alte Dielung wurde demontiert... Unter den Dielen sind noch Reste der alten Füllung zu sehen, rechts ist die Trennwand bereits von der Lehmfüllung der Ausfachung befreit.
  


Ein Blick auf die Deckenkonstruktion im Erdgeschoß, respektive den Fußboden des Obergeschosses von unten: Zwischen den Querbalken waren Bretter eingeschoben und der Fußboden darüber mit Lehmwickeln aufgefüllt. Darunter hingen moderne "Sauerkrautplatten" und ein bißchen Putz.
  


Sommerarbeiten 2012: Der Außenputz muß auch weg...
  


Rundherum ums Gebäude...
  


Im Obergeschoss kam - außer an der Hofseite - unter dem Putz noch altes Fachwerk zutage. Der Rähmbalken an der Südseite des Amtshauses aber war fast völlig weggefault (hier die Südwestecke).
  


Also kam, was kommen mußte: Es wird auch hier nicht billiger. Auch der beste Architekt kann nun mal nicht hellsehen und erlebt so manche Überraschung hinter altem Putz. Da ist eine Kostensteigerung von 160 auf 200 Tausend Euro keine völlige Überraschung. Schön ist vielmehr, daß es keine Diskussion darüber gab, ob die angefangene Sanierung trotzdem zu Ende gebracht wird.
(Faksimile Freie Presse, Ausgabe Umland Chemnitz vom 22.06.2013)

  


Das Gebäude braucht auch neue Medienanschlüsse... Der kurze Weg vom Mast zum Haus wäre mit ganz wenig Bohr- und Schießarbeit auch gegangen. Aber ausgerechnet an dieser Seite hat schon mal jemand die Ecke des Fundamentes mit Beton unterbaut. Also hinten herum: Unter der Ecke lag nur ein großer Schieferblock - viel mehr "Fundament" gibt es hier nicht.
  


Auch die Schmiede brauchte neue Stromkabel. Wenn wir schon da sind, hält uns schlechtes Wetter nicht ab...
  


Inzwischen (Juni 2013) sind bereits die Dachdecker am Werken.
 


Juli 2013: Das Dach ist fertig mit neuen Biberschwänzen eingedeckt...
 


An der Giebelseite kommt gerade die Lattung für die Schiefereindeckung dran.
 


Auch von der Straßenseite sieht man jetzt, daß das Haus auch wieder zusammengebaut wird...
  


Inzwischen sind die neuen Fenster eingebaut, nun kann der Schiefer außen drauf...
  


So langsam wird es wieder richtig schick !
  


Das halbe Gerüst ist gefallen !
  


 Prima - jetzt können wir´s ausbuddeln... Es muß nämlich auch eine neue Drainage verlegt werden.
 


Dabei wird auch der Zugang zum Keller sichtbar. Unter der ins Fundament integrierten Gneisplatte an der Hausecke haben die Vorfahren übrigens ihren Wasseranschluß durchgefädelt.
   


Einen Monat später (September 2013) wieder ein Rundgang um´s Haus. Von der Straßenseite scheint es fast schon fertig...
  


Na ja, wohl doch noch nicht so ganz...
 


Immerhin: Rundherum ist jetzt der Putz dran !
  


Ende September: Das letzte Gerüst ist gefallen und Farbe dran...
  


Bei der Gelegenheit bekommt nun auch das Erdgeschoß der Schmiede noch Außenputz.
 


Und weil inzwischen die Tage schon wieder kürzer werden, glänzt die Schieferverkleidung des Giebels schick in der Morgensonne...
  

   

 

 


Aber auch innen ging es natürlich weiter: Der alte Putz ist hier schon runter und jetzt wird der Rest vom Fußboden rausgepickert... (Februar 2013)
  


Im Juni ist der neue Estrich im Erdgeschoß...
 


Morsche Deckenbalken und Bretter sind ausgetauscht, haben hier schon ihren ersten neuen Anstrich und auch ein neuer Schornstein steht drin.
 


Fußboden fast fertig...
 


Hier im Obergeschoß wird unsere Ausstellung wieder einziehen und dazu wurden die beiden Räume miteinander verbunden. Die eigenartig konstruierte Trennwand bleibt dabei erhalten und ein weiteres "archäologisches Fenster".
  


August 2013: Die Ausstellungsräume nehmen langsam Formen an...
    


Ende September geht´s los: Wir ziehen wieder ein und bekommen neue Vitrinen...
 


In einem alten Haus geht einfach nichts problemlos: Schon gar nicht schwere Schränke um die Ecke und nach oben....
 


Mit vereinter Muskelkraft aber dann doch.
 


Jetzt nimmt die ganze Sache wieder Formen an...
 


Viel größer dürfen sie kaum sein - da ist der Raum zu klein...
 


2014 wurde wieder eingeräumt.
    


Hier finden jetzt auch Funde aus dem Revier wieder einen angemessenen Platz.
  


An der Stelle des "Rußflecks" ist eine Kaminreplik entstanden.
  


Die letzte Bauverzögerung kam unter dem Betonsteinpflaster des Hofes zutage: Eine alte Natursteinpflasterung. Auch die wurde im Sommer 2014 wieder erneuert.
  


Wir sind ziemlich fertig. Am Ende ist nun auch der Hinweis auf die Förderung angebracht.
  


Auch bei der neuen Hausnummer war uns Liebe zum Detail wichtig.
   

 

 

 

Versuch einer Bauwerksbeschreibung...   

Wir sind alle weder Bauingenieure noch Historiker. Da wir unser Bergamtshaus aber - hoffentlich - nie wieder derart "nackt" sehen werden, versuchen wir uns mal an einer kleinen Beschreibung dessen, was uns beim Auseinandernehmen und wieder Aufbauen aufgefallen ist.

 

Die erhaltenen Gebäude:

Auf den ersten Blick sieht es aus, wie viele kleine Bauernhäuser in der Region. Auf einer Grundfläche von zirka 9,5 m x 5,5 m steht ein Erdgeschoß mit - ursprünglich - dicken Bruchsteinmauern. Darauf war ein Obergeschoß aus Fachwerk aufgesetzt und oben ein einfaches Satteldach. An der Westseite ist das Erdgeschoß auf zwei Drittel seiner Breite um einen kleinen Anbau erweitert.

Die nur rund 2,5 m x 3,5 m kleine "Schmiede" daneben weist eine völlig identische Bauweise auf - entstammt also ähnlicher Bauzeit, ist aber hinsichtlich des Fachwerk-Obergeschosses besser erhalten geblieben. Wie der Kartenausschnitt ganz oben zeigt, gehörten noch in den 1930er Jahren außerdem eine größere Scheune und weitere Nebengebäude zum Gebäudeensemble und bildeten zusammen einen kleinen "Vierseitenhof".  

Liebe Wolkenburger !  Falls Sie wieder einmal in Ihren alten Fotos kramen sollten und dabei zufällig alte Fotos des Bergamtshauses entdecken, würden wir uns sehr freuen, diese einmal einscannen und hier verwenden zu dürfen. Melden Sie sich doch bitte an den Öffnungstagen bei uns !

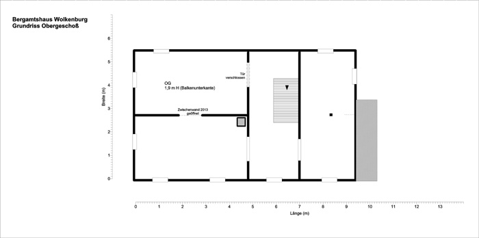
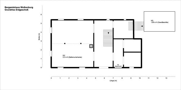
Damit uns jeder versteht, zuerst ein paar "Aufzeichnungen" und Grundrisse. 

  


An der Hofseite (Norden) wurde das gesamte Fachwerk in mehreren Etappen bereits durch Mauerwerk ersetzt. Auch das Natursteinmauerwerk wurde schon vielfach umgebaut und ausgebessert und ist nur im Sockelbereich noch im Originalzustand.
  


Der zugehörige Grundriß - so wie er jetzt ist: Der repräsentative Raum im Erdgeschoß war ursprünglich zweigeteilt und bleibt - bis auf zwei Stützpfosten - komplett offen. Rechts vom Flur Sanitärtrakt und kleine Küchenzeile mit direktem Zugang zum Keller. Interessant ist, daß dieser Tiefkeller außerhalb des Gebäudegrundrisses liegt. An der Westseite des einstigen Hofes befindet sich außerdem noch ein zweiter Bergkeller mit (vom Hof aus) ebenerdigem Zugang.
  


Das Obergeschoß hat im Prinzip dieselbe Raumaufteilung. Wie der stehengelassene Mittelpfosten und das Kopfband zur Außenwand noch zeigen, war auch der rechte (westliche) Raum ursprünglich noch einmal unterteilt.
  


Die (östliche) Giebelseite des Amtshauses mit gut erhaltenem Fachwerk - gleiche Bauweise wie an der viel kleineren Schmiede daneben, nur hat das breitere Obergeschoß des Amtshauses durchgehend Brust- und Halsriegel. Das Fachwerk der Dachgiebel können wir leider nicht mehr exakt rekonstruieren. Da waren die Zimmerleute schneller als die Fotografen.
 


Die Straßenseite: An der sonnigeren Südseite hat das Fachwerk länger überdauert. Nur der durchgehende Rähmbalken mußte komplett durch ein neues Auflager ersetzt werden. Aber auch etliche Balkenköpfe waren schwer geschädigt. An der Westseite steht noch ziemlich viel vom alten Bruchsteinmauerwerk. Interessant die Zweiteilung des Mauerwerks im Erdgeschoß.
  


Der Vollständigkeit halber auch der Westgiebel, soweit wir es noch rekonstruieren können, mit der Hofseite der Schmiede.
 

  

 

 

  

Auffälligkeiten im Erdgeschoß:

Das Mauerwerk im Erdgeschoß ist aus den in der Umgebung vorhandenen Gesteinen und überwiegend aus Bruchsteinen zusammengesetzt. Das Erdgeschoß der Schmiede blieb bis Herbst 2013 unverputzt und konnte so noch einen Teil davon zeigen. Insbesondere an Fenster- und Türeinfassungen weist das Bruchsteinmauerwerk aber zahlreiche "Reparaturstellen" auf. Dabei wurden vorrangig "normale" rot gebrannte Ziegel mit "DIN-Maßen" verbaut. Im westlichen Teil des Obergeschosses an der Hofseite wurden aber auch größere Beton-Formsteine vermauert, wie es sie kaum vor den 1930ern gab. Daneben hat man an mehreren Stellen - u. a. an den etwas konisch aufgehenden, inneren Fenstergewänden - auch Lehmziegel verwendet. Vielleicht konnte man so diese Schrägen leichter formen.

Unter dem Westgiebel hindurch führt eine - allerdings miserabel überwölbte - Treppe in einen Tiefkeller mit zirka 2,0 m x 3,5 m Grundfläche. Das aus Ziegeln gesetzte, flache Tonnengewölbe hat (in der Gewölbemitte) nur 1,85 m Höhe. Die Kellersohle aus gestampftem Lehm liegt im Höhenniveau des Mittelpegels des kaum 30 m entfernt fließenden Herrnsdorfer Baches und steht - besonders nach Starkregen - mit schöner Regelmäßigkeit unter Wasser (aufsteigendes Grundwasser). Es ist durchaus nicht ungewöhnlich, daß Tief- oder Bergkeller außerhalb des Gebäudegrundrisses liegen; dafür gibt es besonders in Westsachsen sehr viele Beispiele. Erinnert sei hier nur an die Dienerschen Gänge in Glauchau oder die "Kellerberge" in Penig.

Das Bruchsteinmauerwerk ist nur im Sockelbereich noch umlaufend erhalten. Besonders am Ostgiebel und an der (nördlichen) Hofseite ist es von der Höhe der Sohlbänke der Fenster an fast überall durch jüngeres Mauerwerk ersetzt. An der Südseite fällt eine Zweiteilung auf, welche annähernd mit der Trennwand zwischen Flur und dem großen Raum an der Ostseite zusammenfällt. Vermutlich hatte das Gebäude also einen Vorgängerbau auf ähnlichem Grundriß, der umgebaut, erweitert bzw. ergänzt wurde. Vielleicht im 16. Jahrhundert, als der Bergbau um Wolkenburg seine zweite Blütezeit erlebte.

Beachtet man dann, daß die einzigen architektonischen "Schmuckelemente" die Fenstereinfassungen aus Rochlitzer Tuff darstellen, die aber nur an der Tür und an fünf der sechs Fenster dieses großen Raumes im Erdgeschoß eingebaut wurden, kann man zu der Meinung gelangen, daß hier tatsächlich ein repräsentativer "Amtsraum" - zumindest aber die "gute Stube" des Bauernhauses - eingerichtet war.   

    


Fangen wir ganz unten an: Um Drainage zu verlegen, mussten die Fundamente ausgegraben werden. Dabei kam auch der Kellerzugang ans Tageslicht. Mit einer ziemlich seltsamen Bauweise für ein Ziegelgewölbe - da waren wohl früher Heimwerker zugange ?  
 


Von innen sieht der in den Berghang gegrabene Gebäudekeller mit seinem flachen Tonnengewölbe eigentlich ganz gut aus - wenn er nicht bei jedem Hochwasser mit Grund- und Hangwasser vollaufen würde... Die Hoffnung, hier einen Zugang zum Stolln zu finden, hat sich übrigens nicht erfüllt.
 


Details der Mauerung: Bruchsteine und Ziegelmauerwerk in den Rahmungen von Fenstern und Türen.
 


Zwischen Tür- und Fensterrahmen hat man auch Lehmziegel verwendet. Offenbar hat man hier alles verbaut, was gerade billig zu haben war.
    


Nur bei den Tür- und Fenstereinfassungen im Erdgeschoß hat man etwas Wert auf schmückende architektonische Elemente gelegt. Sie wurden aus dem violetten, Rochlitzer Porphyrtuff gefertigt. Bedauerlicherweise wurden sie in der Vergangenheit mit Anstrichen getränkt... Sturz und Laibung des Türrahmens besitzen eine kleine Phase an den Innenkanten.
   


Nach unten endet diese Kehlung etwa einen halben Meter über dem Boden.
 


 Auch fünf der sechs Fenster des östlichen Raumes im Erdgeschoß besitzen Rahmungen aus Porphyrtuff. Sturz und Laibung besitzt wieder eine einfache, rechtwinklige Kehlung. In diese einspringende Kante hatte man früher Außenfenster als Wärmedämmung eingesetzt.
  


An der Straßenseite hat man auch zwischen den Fenstern Lehmziegel eingesetzt.
 


Vielleicht konnte man die schrägen Fenstergewände aus den Lehmziegeln leichter formen...
 


Auch an der Giebelseite (im Foto von außen) findet man Lehmziegel im Mauerwerk.
   


Oder an der Einfassung des kleinen Fensterchens im Flur.
 


Als Fenstersturz hat man hier eine breite Gneisplatte verwendet.
 

  

 

 

  

Bauweise des Obergeschosses:

Das Obergeschoß wurde als Rähmfachwerk errichtet. Allerdings ist wohl schon früher auf der sonnenarmen Nordseite (zum Hof hin) der Hausschwamm eingezogen, so daß man es auf dieser Seite (vermutlich in zwei Abschnitten, denn nur die Westseite der dem Hof zugewandten Seite beinhaltet die "modernen" Betonformsteine) schon vor längerer Zeit durch Ziegelmauerung ersetzen mußte. An der Südseite und an den beiden Giebeln ist es dagegen altersentsprechend gut erhalten - inzwischen jedoch schon wieder unter einer hinterlüfteten Lattung und einer Dachschiefer- Verkleidung verschwunden. Aber auch an der Südseite waren der Rähmbalken und etliche Balkenköpfe stark verfault und mußten durch unsere fleißigen Zimmerleute ersetzt werden.

Gut erhalten und zu sehen ist die Rähmfachwerk- Bauweise noch an der Schmiede. Deren Obergeschoß ist in nahezu identischer Bauweise wie das Hauptgebäude errichtet. Einziger Unterschied: Die viel kleinere Schmiede besitzt nur einen umlaufenden Brustriegel, das Amtshaus dagegen Brust- und Halsriegel. Ungewöhnlich sind daneben die beiden Giebelseiten der "Schmiede": Deren schräge Eckverstrebungen weisen nämlich nach innen.

Da wir die Balken und Pfosten des Amtshauses bei der Rekonstruktion sämtlich freilegen mußten, fielen uns weitere Details auf: An vielen Stellen wurden ganz offenbar Balken "recycelt" . Sie weisen Aussparungen für Verblattungen auf, die einfach nicht zueinander passen können, selbst wenn man den einen oder anderen Umbau von Trennwänden annimmt. Ausgefacht hat man übrigens überall mit krummen Brettern und Lehm. Sehr ungewöhnlich ist in dieser Hinsicht auch das Fachwerk der Trennwand im östlichen Raum des Obergeschosses. Auf einen kurzen Blick sieht es ganz normal aus, weist zwei Riegel auf und nach außen weisende Streben. Aber spätestens beim zweiten Blick fällt ins Auge, daß die Brust- und Halsriegel zwar zueinander parallel, aber ansonsten völlig schief eingebaut sind. Das aber wiederum mit schöner Symmetrie (in der Mitte gab es vermutlich schon früher mal eine Tür).

Analog waren auch die Zwischendecken gebaut. In die Balken hat man Nute eingeschlagen und Bretter eingeschoben. Darüber kamen Lehmwickel als Dämmung und obenauf die Dielung.

(Leider nur) einen der ersetzten Balken haben wir mit dankenswerter Unterstützung der Bergsicherung Sachsen GmbH, Schneeberg, dendrochronologisch datieren lassen. Es handelte sich dabei laut Gutachten um eine Tanne, die um 1580 zu wachsen begann und im Winter 1672 - 1673 im Alter von rund 90 Jahren geschlagen wurde... Wenn das Gebäude als Amtshaus tatsächlich vor 1613 (Verkaufserwähnung in den Bergbüchern des Bergamtes Marienberg) errichtet wurde, hatte es 1672 folglich schon wenigstens 60 Jahre auf dem Buckel und offenbar die ersten Ausbesserungen nötig - oder es machten sich wegen geänderter Nutzung Umbauten erforderlich.

  

  
Vorangestellt: Die zweite Scheibe für die Ausstellung ist leider beim Abschneiden gerissen. Aber dieser Balken wurde dendrochronologisch datiert und war 2013 schon über 340 Jahre alt !!
Diese Tanne hatte schon so Einiges erlebt und den 30jährigen Krieg überstanden, bevor sie geschlagen und im Bergamtshaus eingebaut wurde... Wir haben hier mal die Jahresringe 1618 und 1648 rot hervorgehoben und einige historische Daten angetragen.
  


Hinter der Schutzfolie konnte man während des Wiederaufbaus das schmucklose Fachwerk mit seiner Lehmausfachung ahnen.
  


Obergeschoß von innen: In der Trennwand westlich der Treppe setzt sich dieselbe Konstruktion, wie in der Außenwand fort: Brust- und Halsriegel und nach den Außenseiten weisende Streben.
 


In den Brustriegel hat hier ein Zimmermann eine römische III eingeschnitzt. Sonst wurden nur ganz wenige Zimmermannszeichen gefunden.
    


Im Hintergrund rechts noch ein alter, zweifarbiger Anstrich auf dem Putz. Links ist der Putz schon ab. Dort sieht man, daß dieser Riegelbalken schon einmal wo anders eingebaut war.
  


Hier sieht man´s noch besser: Diese zwei schrägen Aussparungen in den Riegeln passen ganz sicher nicht zu einer hier aufgeblatteten Strebe - die müssen schon mal wo anders verbaut gewesen sein.
 


Auch hier war schon einmal was Anderes quer eingezapft.
 


Oder hier. Unter diesem Deckenbalken im Obergeschoß war mal ein Kopfband eingebaut. Der Holznagel steckt noch drin.
    


Die Bauweise der Zwischendecken: In Nute an den Unterseiten der Querbalken wurden Bretter eingeschoben und mit Lehmwickeln abgedichtet.
  


An den alten Balken im Obergeschoss sieht man noch die Nut für die untere Bretterlage und in dem Längsriß Reste des Lehms.
 

  
Das Pendant auf der anderen Seite. Im Ausstellungsraum bleiben sie sichtbar.
   


Als sehr ungewöhnlich erwies sich die Mittelwand im östlichen Obergeschoß. Die beiden Riegel wurden hier nur parallel zueinander, aber schräg zu sämtlichen anderen Balken eingesetzt.
 


Hier ist die Ausfachung leer bis auf den Verzug mit alten Brettern und man sieht die äußerst ungewöhnliche, schräge Balkenkonstruktion noch besser.
 


Nach dem Wiederaufbau ermöglichen im Obergeschoß "archäologische Fenster" einen Blick auf diese ungewöhnliche Konstruktion.
   


Noch ein Fundstück: An der Unterseite eines Dielenbrettes haben sich einige der Bauleute vergangener Zeiten verewigt. Für alle, die der deutschen Schrift nicht mehr mächtig sind: Anno 1934 haben hier gearbeitet: August Franz Polster, Zimmermann, Maurer Otto Hoppe aus Niederwinkel, Iwan Blume aus Wolkenburg und Karl Kante aus Herrnsdorf.
 

  

 

 

  

Zum Vergleich: Bauart und Fachwerkkonstruktion der Schmiede:

 


Während das Obergeschoss des Amtshauses mit Schiefer verkleidet wird, kann man an der fertigen Schmiede die Fachwerkbauweise auch zukünftig sehen: Hier die östliche Längsseite mit ganz klassischem Rähmfachwerk, mit einem Brustriegel auf halber Höhe und nach außen weisenden Eck-Verstrebungen im Obergeschoß...
  


... und die Giebelseiten - mit ungewöhnlicherweise nach innen weisenden Eckverstrebungen.
  


Details der unverputzten Natursteinmauerung des Erdgeschosses: Phyllitblöcke als Eckversteifung sind hier mit vertikal gestellter Schieferung verbaut, das Füllgefach zwischen Rähm und Schwellbalken ist mit Ziegeln ausgesetzt.
  


Eine mit Ziegeln zugesetzte, winzige Luke in Kopfhöhe neben der Tür an der Hofseite. Schwer zu sagen, wofür sie einmal gedient haben könnte.
 


Detail des Rähmfachwerks: Unten der Rähm oder Rahmbalken als Auflager für die Deckenbalken über dem Erdgeschoß, an dieser Stelle unten mit kreuzförmiger Kämmung aufgelegt, dann darüber der Schwellbalken des Obergeschosses, auf die Querbalken mit gerader Kämmung aufgelegt.
   

  

 

 

   

Ein letztes Fundstück:

Beim Abriß des morschen Schornsteins kam u. a. an der Innenwand des Obergeschosses unter dem neuzeitlichen Putz ein Rußfleck zutage. Da er scharf begrenzt ist, kann man wohl davon ausgehen, daß nicht das Haus zwischendurch einmal gebrannt hat, sondern daß hier ein offener, im Erdgeschoß bis zu 4 m breiter ( !! ) Kamin gestanden hat. War das vielleicht einmal ein "Probierofen", in dem der Bergmeister Erzproben auf ihre Silbergehalte untersuchte ? 

Wir werden Vieles nicht mehr genau herausfinden können. Aber dieser Rußfleck ist immerhin ein Indiz mehr dafür, daß genau dieses Gebäude tatsächlich einmal als Amtssitz eines Bergmeisters gedient hat.

     


Eigentlich stand hier hinten in der Ecke der alte Schornstein. Wie kam aber der Ruß auf die Wand ?
   


Etwas näher: Offenbar ist der Rußfleck schon ziemlich alt und von jüngerem Lehmputz unterbrochen. Vermutlich Standort eines offenen Kamins, bevor Öfen und Schornstein eingebaut bzw. erneuert wurden.
    


Noch bissel näher: Im Treppenhaus stand vielleicht auch mal ein Ofen, denn von unten kommt hier ein tönernes Abzugsrohr durch die Wand.
       


Auf dem Foto leider bißchen verdeckt durch die Spanplatten, aber im Hintergrund rechts doch einigermaßen zu sehen: Die Fortsetzung des Rußflecks im Erdgeschoß.
  


Agricola stellt viele verschiedene Typen von "Öfen" vor: Einer davon ist dieser "Runde Probierofen", welcher fast "tragbar" wirkt...
  


Wahrscheinlich gebräuchlicher dürfte diese Art gewesen sein, welche an einen fest eingebauten "Muffelofen" erinnert. Der Sauerstoff aus dem Blasebalg wird in dieser Darstellung mittels eines eisernen Ringes (die "Kuchenform" im Ofen) auf eine kleine Erzprobe gelenkt. Da man diese nicht verbrennen und deshalb genau beobachten wollte, fehlten vermutlich tatsächlich eiserne Türen. Wenn man den Ofen später einmal abgebrochen hat, bleibt nur der Rußfleck der Ofen-Rückseite auf der Wand. In unserem Fall befand sich der eigentliche Ofen vermutlich im Erdgeschoß und dessen Kamin beheizte nebenbei das Obergeschoß gleich mit.
 

  

Ein Nachwort:

Unser kleines Wolkenburger Revier ist bislang eigentlich nur Fachleuten näher bekannt. Wir freuen uns trotzdem jedes Jahr über einige Hundert neugierige Besucher an unseren - zugegebenermaßen - recht wenigen Öffnungstagen ( www.wolkenburger-bergbaurevier.de). Wir hätten gern auch mehr Besuchstage, aber irgendwann muß ja auch die Arbeit getan werden und dummerweise hat der Tag nur 24 Stunden. Der Wiederaufbau des Bergamtshauses hat uns jedenfalls sehr viel Arbeit und Freizeit gekostet und dadurch sind auch andere Projekte zwischenzeitlich wieder auf der Strecke geblieben.

Aber wir hoffen, daß das rekonstruierte Haus nun ein "Eye-Catcher" nicht nur für die Nachbarn, sondern auch für die Radler und Wanderer auf dem Muldetal-Radweg geworden ist und daß in Zukunft noch einige mehr auch einmal bei uns anhalten. Es mag vielleicht unscheinbar aussehen - ist aber ein richtig spannendes Mosaiksteinchen unserer Geschichte. Also, lassen auch Sie sich doch einmal bei uns sehen !

Bis dahin noch einmal ein herzliches Dankeschön allen, die Fotos und Fachwissen zu diesem Beitrag beigesteuert haben und...

Glück Auf !

J. B.